Öncesinde tek bir devlet olarak var olan Müslümanlar, bu asırlarda birçok devlete bölünmüştür. Abbasilerin 8. yüzyılda Emevileri yıkarak hilafeti ele geçirmelerinden iki asır sonra, 10. yüzyılda Endülüs Emevileri ve Şii Fatımiler, kendi hilafetlerini ilan etmişlerdir. Abbasi hilafeti zamanla gerilemiş, İslam dünyasında Şii hâkimiyeti güçlenmiştir. Ayrıca İslam coğrafyasının doğu sınırlarında birbirine cephe almış 20 kadar mahalli hâkimiyet, birbirleriyle mücadele halindedir (Kafesoğlu, 2016: 76). Bu iç çatışmalar ve siyasi kargaşa ortamı, tabii olarak İslam dünyasında coğrafi sınırlar açısından gerilemeye sebep olmuş, toprak kayıpları yaşanmaya başlamıştır.
Fikri parçalanmışlık ise var olan bu siyasi parçalanmışlığın başlıca sebeplerinden biridir. Hakikati iddia ettiğini söyleyen birçok akıl birbirleriyle mücadele halindedir. Akıldaki bu ayrılık doğal olarak eyleme de yansımıştır (Fazlıoğlu, 2018: 131). Böyle bir siyasi ve fikri kargaşa ortamının ve parçalanmışlığın hâkim olduğu İslam dünyası, Oğuzların boy boy Müslüman olmaya başladıkları bir dönemde, 11. yüzyılda kurulan Selçuklu Devleti ile birlikte büyük oranda tekrar birliğe kavuşmuştur. Selçuklular, yeni dâhil oldukları medeniyetin yaşadığı bu buhrana “faal, savaşçı ve teşkilatçı” (Şeker, 2015: 27) özellikleriyle cevap vermeye çalışmıştır.
Selçukluların askeri başarıları neticesinde, Kuzey Afrika ve İspanya haricindeki pek çok İslam beldesi, tek bir çatı altında toplanmıştır. Lâkin siyasi parçalanmışlığın tam manada giderilebilmesi için fikri parçalanmışlığın da birliğe kavuşması gerekmektedir. Bu minvalde ortak aklın ve ortak dilin üretilebileceği saha olan eğitim, fikri parçalanmışlığın giderilmesinde önemli bir rol oynayacaktır. Selçuklular, parçalı eğitim faaliyetleri yerine, bânilerinin ekseriyetle yönetici tabakadan olduğu medreseler inşa etmişlerdir. Bânilerin vakfiyelerde belirlemiş oldukları şartlarla eğitimde devletin görünürlüğü artmış ve bu doğrultuda medreseler, düzenin ve birliğin oluşmasında etkili unsurlardan biri olmuştur. Dönemin siyasi-fikri ortamı ve eğitimdeki bu merkezileşme çabaları, medrese yapılarına mimari açıdan da yansımıştır. İhtiyaçlar doğrultusunda belirli bir düzen içerisinde farklı varyasyonlarla üretilen medreseler, bu etkenler bağlamında kendi tipolojisini zaman içerisinde oluşturacak ve geliştirecektir.
Eğitimde merkezileşme, yönetimdeki merkezileşmeyle paralel bir süreç izler. Türklerin, eski devlet anlayışlarından gelen cihan hâkimiyeti mefkûresi, İslam’a girmelerinden sonra da devam etmiştir. Bu anlayış, cihanın tek bir hükümdar tarafından idare edilmesi hedefini ortaya koyar. İdareyi tek bir hükümdar etrafında toplama arzusu, dolayısıyla yönetimde merkezileşmeye de neden olur. Bu merkezileşme, sadece yönetimsel anlamda sınırlı kalmaz, hükümdarın hâkimiyeti altında bulunan toplum nezdinde de kaynaşmaya sebebiyet verir ve bir terkip yaşanır. Bu terkibi en iyi okuyabileceğimiz sahalardan birisi ise hiç şüphesiz mimaridir. Farklı dinlerden, kültürlerden, lisanlardan insanlar, cihan hâkimiyeti mefkûresine sahip bir hükümdarın bânisi olduğu bir yapıda buluşur.
Çalışmanın amacı, Selçuklular dönemindeki eğitimde merkezileşme çabalarının medrese mimarisini nasıl etkilediğini ortaya koymaktır. Bunun için de çalışma sahası olarak Anadolu coğrafyası seçilmiştir. Çünkü Anadolu hem döneme ait medrese yapılarının çokluğu, çeşitliliği hem de renkli bir toplum yapısının mimarideki buluşmasını görebilmek adına çok önemli bir kaynaktır. Bu kapsamda, medreselerden önce var olan parçalı eğitim faaliyetleri anlatılmış, medreselerin ortaya çıkışında etkin unsurlar olan; tarihsel süreç ve dönemin siyasi-fikri ortamı, yönetim anlayışının getirdiği merkezileşme ve bunun eğitime ve mimariye etkileri araştırılmıştır.
Parçalı Eğitim Faaliyetleri
Bir eğitim kurumu olarak medreselerin İslam düşünce hayatına yapmış olduğu katkıları daha iyi anlayabilmek adına kendisinden önce var olan eğitim yapılarının mutlaka incelenmesi gerekir. Esasında medreseler ile öncesinde var olan eğitim yapıları arasında ders işleme metodu ve hoca-talebe ilişkisi açısından herhangi bir fark yoktur. Lâkin medrese öncesi İslam coğrafyasında var olan eğitim yapıları incelendiğinde mekânsal ve kurumsal anlamda herhangi bir düzenden bahsetmek oldukça güçtür. Parçalı bir eğitim faaliyeti vardır. İşlev olarak sadece eğitime hasredilmiş tek bir mekân yoktur. Mekânlar çok işlevlidir. Oysaki medreselerde, işlevsel olarak yalnızca eğitim faaliyeti yapılmaktadır. Eğitimde mevzubahis bu düzen, ancak medreselerle birlikte gelişmiş ve yaygınlaşmıştır.
Medreselerden önce eğitim faaliyetlerinin yapıldığı mekânlar; evler, camii-mescid, küttab, Beytü’l Hikme, Dar’ül İlim, zaviye, ribat olarak belirtilebilir.
Evler: İslam eğitim ve öğretim tarihi içerisinde evler önemli bir yer tutar. Medreselerin faaliyete girmelerinden sonra dahi bu işlevlerini devam ettirmişlerdir. İslam tarihindeki eğitim ve öğretim faaliyeti açısından ilk ve en önemli ev olarak Hz. Peygamber döneminde İslam tebliğinin yapıldığı Darü’l Erkam gösterilir. Sonraki dönemlerde de ulema evleri, eğitim-öğretim faaliyetlerinin sürdürüldüğü yerler olmaya devam etmiştir. Kendi evinde talebelerine ders veren âlimlerden örnek olarak İbn Sina verilebilir (Beken, 2014: 20).
Mescid-Cami: Cami ve mescid yapıları arasında ayrım yapıldığı görülmektedir. Cami, el-mescidü’l-cami’ (cemaat-i müslimini bir araya getiren, toplayan mescid/ibadethane) teriminin kısaltılmış halidir (Makdisi, 2018: 47). Camii, içinde minberin bulunduğu, Cuma hutbesinin okunduğu ve daha büyük kitleleri bir araya getiren ibadethane hüviyetindedir. Mescid ise, daha küçük ölçekte ve günlük ibadetlerin yapıldığı bir mekân olarak kullanılmıştır. Yalnız bu ayrım sadece ibadet yapılan mekân olarak değil eğitim faaliyeti açısından da yapılmaktadır (Makdisi, 2018: 47).
Cami, namaz ibadetinin haricinde aynı zamanda içerisinde farklı İslami ilimlerin okutulduğu bir eğitim kurumu hüviyetindedir. Yapılan eğitim biçimine ise halka adı verilirdi (Şekil 1). Halka, bir hoca ve etrafında dairesel şekilde oturan öğrencilerin oluşturduğu oturma düzeninin adıdır. Halife, halkalara atama yapardı (Makdisi, 2018: 52). “Halkalar zaman zaman, eğitimi verilen ilim dalı ile anılırdı: “Dilciler halkası” (halkatü’n-nahviyyin) gibi.” Mescidler ise bir hoca adına kurulup onun adıyla ünlenebilmekteydi. Örneğin, Bağdat’ta bulunan eş-Şafii Mescidi gibi (Makdisi, 2018: 52).
İslam dünyasında mescidde halka biçiminde ilk ders veren kişi Hz. Peygamber’dir. Mescid-i Nebevî’nin önce güney giriş tarafında bulunan, sonra kıblenin Mescid-i Aksâ’dan, Mescid-i Haram’a çevrilmesiyle kuzey tarafına taşınan ve temel olarak fakirlere tahsis edilen, aynı zamanda misafirhane işlevi de gören Suffe (gölgelik), zamanla bir ilim merkezi haline gelmiştir (Dündar, 2012: 11). Buradan hareketle hem eğitimin verildiği mekân olarak hem de ders veriliş usulü olarak Mescid-i Nebevî, İslâm eğitim-öğretim kurumlarının temeli olarak kabul edilmektedir.
Küttab: Osmanlılar zamanında yer alan sıbyan mektebinin karşılığıdır. “Çocukların eğitimine tahsis edilen küttâblarda ilk dönemlerde uygulanan öğretim programı hakkında net bilgi bulunmamakla birlikte çocuklara basit okuma, yazma, şiir, hesap, nahiv ile birlikte Kur’an ve bazı temel dinî bilgilerin öğretildiğini ileri sürmek mümkündür.” İlk olarak Hz. Peygamber döneminde Medine’de kurulan küttablar, Emeviler ve Abbasiler döneminde de devam etmiş, bu okulların sayısında ciddi artış yaşanmıştır (Beken, 2014: 27).
Beyt’ül Hikme: Kuruluş tarihi kesin olmamakla birlikte Abbâsî halîfelerinden Me’mûn tarafından 830 yılında Bağdat’ta kurulduğu zikredilmektedir. Beytü’l-Hikme, “tercüme ve yüksek seviyedeki ilmi araştırmaların yapıldığı merkezlere” verilen isimdir. Burada farklı kültürlerden, farklı dillerden eserler toplanıp Arapça’ya çevirileri yapılmıştır. Farklı beldelerden getirilen kitaplarla döneminin en zengin kütüphanesi haline gelmiştir. Bağımsız bir yapı olmayıp saray müştemilatı içerisinde yer almaktadır. 1258 yılında Moğollar tarafından yakılıp yıkılmıştır (Kaya, 2020).
Diğer Yapılar
Darü’l İlim: Beytü’l-Hikme kurumunun halka açık ve vakıf destekli bir türü olan bu mekânlar, çeşitli ilimlerde önemli kitapları ihtiva eden büyük kütüphaneler olarak öne çıkmaktadır (Dündar, 2012: 17).
Zaviye: Sözlükte “köşe” manasına gelen zaviye, aynı zamanda “Osmanlı Devleti’nin ilk devirlerinde genellikle yerleşim merkezleri dışındaki yollar üzerinde, derbentlerde kurulan ve dinî-tasavvufî inanç ve fikirleri yaymak, bölgenin güvenlik ve âsâyişini sağlamak, gelip geçenleri barındırmak, yedirip içirmek gibi işleri üstlenen, Anadolu’nun Türkleşmesinde büyük rol oynamış olan dinî ve sosyal kurum”dur (Kubbealtı Lugatı, 2021). Şam ve Kahire camilerinde fıkıh dersi verilen zaviyeler bulunmaktaydı ve bunlara “medrese” de denilmekteydi (Makdisi, 2018: 47). Bu kadar mana taşımasının sebebi olarak kelimenin özü itibariyle taşıdığı “köşe” anlamı gösterilebilir. Eğitim için bir caminin köşesinin kullanıldığı bir mekânın zaviye olarak isimlendirilmesi buna örnek olarak verilebilir.
Ribat: Başlangıçta sınır boylarında askerler için yapılmış yapılardır. “Ribâtlarda askerî eğitimin yanı sıra, İslâmî ilimler de tâlim edilmiştir. Bedenen cihada hazırlanan gönüllü mücahitler, aynı zamanda ilimle de meşgul olmuşlardır. 9. yüzyıldan itibaren İran ve Mâverâünnehir bölgesindeki ribâtların askeri karakterlerini kaybederek tasavvufî bir veche kazandığı ve zamanla tekke ve zâviyeye dönüştüğü kaydedilmektedir” (Dündar, 2012: 20). 12. yüzyılda ise tasavvuf ve fıkıh eğitiminin birleştiği mekânlara dönüşmüşlerdir (Makdisi, 2018: 44).
Görüldüğü üzere küttab haricinde diğer tüm yapılar, tek başına bir eğitim mekânı işlevinde değildir. Eğitim çok işlevli yapıların işlevlerinden yalnızca birisidir. Ayrıca aynı zaman diliminde farklı işlevlere sahip birden çok eğitim mekânının varlığı göze çarpmaktadır. Dolayısıyla bu unsurlar, tek başına bir eğitim mekânı olarak işlev gören medreselerin daha çok ön plana çıkmasında ve insanların rağbet göstermesinde etkili olması muhtemeldir.
Selçuklu Medreselerinin Ortaya Çıkışında Etkin Unsurlar: Tarihsel Süreç ve Siyasi-Fikri Ortam
Hiçbir sanat eseri, hiçbir bina vücuda geldiği yerin belirleyicisi olan toplumun karakterinden, yaşam biçimlerinden, dünya görüşü ve hayat tasavvurundan bağımsız değildir. Eser, tarihsel süreç içerisinde toplumu şekillendiren, ona yön veren siyasi-fikri ortamın izini taşır. Kimi zaman da eser, yüklendiği işlev itibariyle onu vücuda getiren ortamın farklılaşmasında belirleyici faktörlerden biri olur. Siyasette ve düşünce hayatında yapmış oldukları faaliyetlerle birçok önemli gelişmeye sebep olan Selçuklular, bu faaliyetler bağlamında vücuda getirdikleri eserlerle de dâhil oldukları medeniyet içerisinde yol açıcı olmuştur. Bu önemli gelişmelerin yaşandığı sahalardan biri de eğitimdir. Selçuklular döneminde yaygınlaştırılan, sahip olduğu eğitim anlayışıyla ortak aklın ve ortak dilin üretiminde etkili bir yere sahip olan medreselerin, tarihsel süreç içerisinde getirileri incelendiğinde, dünya tarihinde 11. yüzyıl ve sonrasına dair büyük bir etki sahibi olduğu görülür.
Tarihsel Süreç
Selçuklular, tarih sahnesine ilk çıktıklarında bölge coğrafyasında; Abbasiler, Fatımiler, Gazneliler, Karahanlılar, Samaniler, Büveyhiler ve Bizanslılar gibi iktidar sahibi devletler, hüküm sürmekteydiler. 960 yılında Selçuk Bey, komutasındakilerle birlikte Yengi Kent’teki büyük Oğuz kitlelerinden koparak Cend’e yerleşmiş ve burada Müslüman olmuştur. Selçuklular, bu tarihten itibaren tam 78 yıl boyunca yurt arayışı içerisinde olurlar ve bunun için uzun mücadeleler verirler. Nihayet son durakları olan Horasan’da 1038 yılında Gaznelilere karşı giriştikleri savaş sonucunda istiklallerini kazanırlar. 1040 yılında Dandanakan Savaşı ile birlikte de bağımsızlıklarını tescillerler (Turan, 2017).
Selçuklular bağımsızlıklarının ardından hızla hâkimiyet sahalarını genişletirler. Yıllardır Bağdat’ı hâkimiyeti altında bulundurup, Abbasi halifesini esir eden Şii Büveyhiler, halifenin yardım talebiyle 1055 yılında Selçuklular tarafından ortadan kaldırılır. Tuğrul Bey, 1058 yılının başlarında Bağdat'ta bizzat Abbasi halifesi Ka’im bi’Emrillah tarafından “Dünya (şark ve garp) Sultanı” ilan edilmiş; kendisine “Dinin temeli” (Rükn üd-din) ve “Halifenin ortağı” (Kasîm Emîr ul-mu’minîn) lakapları verilmiştir (Turan, 2017).
Bu yüzyılda İslam coğrafyasına doğru yoğun bir Türkmen göçü yaşanır. Bu durum, Selçukluları epey uğraştırmıştır. Yaşanan göçler, Selçuklu ülkesinde, Müslüman halk ve ülkelerinde istilaya ve asayişsizliğe sebep olur. Bu yoğun göç baskısına karşı Selçuklular, Oğuzları Anadolu’ya yönlendirmiş ve gazaya teşvik etmişlerdir. 1071 yılında ise Sultan Alparslan komutasındaki Selçuklular, Malazgirt’te Bizanslıları bozguna uğratarak büyük bir zafer kazanırlar. Bu zaferin ardından Türkler, karşılarında bir Bizans ordusu kalmadığı için, ordular ve halk kitleleri halinde Anadolu’nun fethine başlarlar (Turan, 2017).
Selçuklu komutanlarından bağımsız olarak Anadolu Türkmenlerini ve özellikle Yabguluları etrafında toplayan Süleyman Şah, 1075 yılında İznik’i fethedip kendisine payitaht yapar. Süleyman Şah, kısa zamanda sınırları boğazlardan Suriye’ye kadar uzanan kuvvetli bir devlet kurmuştur. 1092 yılında Melikşah’ın ölümünün ardından başlayan taht kavgalarıyla birlikte Büyük Selçuklular duraklama dönemine girer ve Anadolu’ya müdahaleleri son bulur. Sultan Sencer ile birlikte tekrardan toparlanan Selçuklular, 1141 yılında Karahıtaylara karşı giriştikleri savaşta büyük bir yenilgiye uğrar. 1153’te kendi kavimlerinden olan Oğuzlarla yapmış oldukları savaşta da büyük bir yenilgi alırlar ve bu savaşta, sultan esir düşer. Sultan Sencer, üç yıl süren esaretin ardından kaçmaya muvaffak olsa da devleti tekrardan toparlama imkânı bulamadan 1157 yılında vefat etmiştir. Sultanın ölümüyle birlikte de Büyük Selçuklu Devleti, son bulmuştur (Turan, 2017).
Anadolu Selçuklular ise 1096 yılında başlayan ilk haçlı seferinde, haçlılara karşı giriştikleri çetin savaşlarla düşmana ciddi kayıplar yaşatmalarına karşın İznik’i kaybetmişler ve başkenti Konya’ya taşımışlardır. 1096-1190 yılları arasında yaklaşık bir asır süren haçlı seferlerini göğüsleyen Anadolu Selçuklular, 1176 yılında Bizanslıların Türkleri Anadolu’dan atmak için giriştikleri Miryakefalon Savaşı’ndan da zaferle çıkarak Anadolu’yu artık kesin bir Türk yurdu haline getirmiştir. Türkler, Anadolu’da öyle bir yayılmışlar ve yurt tutmuşlardır ki ilk defa Sultan Mesud zamanında Anadolu, Batı kaynaklarında “Turkia” adıyla kaydedilmiştir (Turan, 2017).
Sultan Alâaddin Keykubâd zamanında ise Anadolu Selçuklular en zirve dönemini yaşar. Bu dönemde Türkiye çok mamur ve müreffeh olmuş, ileri bir medeniyet seviyesine erişmiştir. Cami, medrese ve kervansaray gibi pek çok büyük bina ve müessese inşa edilmiştir. Lakin 1237 yılında, sultanın ölümünün ardından yerine geçen II. Keyhüsrev’le birlikte, 1243 yılında, Moğollarla yapılan Kösedağ Savaşı neticesinde, Anadolu Selçuklular büyük bir yenilgi yaşamış ve Anadolu, Moğol tahakkümü altına girmiştir. Anadolu Selçuklular, her ne kadar siyasi buhranlara ve Moğol müdahalelerine maruz kalsa da 1277’de Muineddin Pervane’nin ölümüne kadar “ordusuyla, idaresiyle mevcut olduğu gibi iktisadi ve medeni yükselişte de mühim bir sarsıntı yaşamamıştır” (Turan, 2017). Pervane ile sağlanan sükûnet ortamı bu tarihten itibaren yerini kargaşaya bırakır. Moğollar baskılarını arttırmışlar, atadıkları valiler ile Anadolu’yu idare etmişlerdir. 1308 yılına gelindiğinde ise Anadolu Selçuklu Devleti artık tamamen yıkılmıştır (Kafesoğlu, 2016: 66).
Moğol istilaları Anadolu’nun Türkleşmesinde de önemli bir yere sahiptir. “Malazgirt zaferini müteakip Anadolu’ya nasıl sel halinde insan akını olmuş ise Moğol istilası önünde de aynı şekilde Türkmen kitleleri bu ülkeye kaçmışlar ve Moğol kıtalinden kurtulmaya çalışmışlardır” (Turan, 2017: 299). Türkmenler, burada da Moğolların tazyikiyle uçlarda yığılırlar ve Bizans topraklarını fethetmeye başlarlar (Turan, 2017: 300). Uçlarda yığılan Türkmenler, Selçukluların ardından kurdukları beyliklerle Anadolu’da yeni bir dönemi başlatırlar.
Siyasi-Fikri Ortam
Medreseyi daha iyi anlayabilmek, üzerine daha güçlü yorumlar yapabilmek adına, ona şöhret kazandıran Selçukluların ortaya çıktığı dönemi, siyasi-fikri açıdan incelemek oldukça önemlidir. Selçuklular, İslam medeniyetine siyasi ve askeri bir güç olarak dâhil olduğunda, İslam dünyası, siyasi açıdan tam bir parçalanmışlık içerisindeydi (Şekil 2). Hâlihazırda üç farklı devlet; Abbasiler, Fatımiler ve Endülüs Emevileri halifeliklerini ilan etmişti. Sünniliğin müdafii Abbasiler ile Şii Fatımiler birbirleriyle mücadele halindeydiler. Fatımiler, bu mücadelede hâkimiyet sahasını genişletmiş, Mısır ve Suriye’ye hâkim olmuş ve Şii Büveyhiler, Bağdat’ı ele geçirerek Abbasi halifesini esir etmişlerdi. Yaşanan bu parçalanmışlık, coğrafi sınırların küçülmesine de sebep olmaktaydı.
Fatımiler, Kahire’de 972 yılında yapımı biten Ezher Camii, 1005 yılında kurulan “Darû’l-Hikme” veya “Dârû’l-İlim” adlı müesseseler ve ardından bu müesseselerin İskenderiye, Halep ve Trablusşam’da yer alan küçük örneklerinde (Köroğlu, 2006: 45) yürüttükleri eğitim-öğretim faaliyetleriyle Şii inancını yaymak amacını gütmüşlerdir. Kurdukları eğitim mekânlarında yetiştirdikleri dailer, farklı coğrafyalarda bu inancı insanlara aşılamaya çalışmışlardır. Dailer, Kahire’de bulunan “dai’d-duâtın”[1] emriyle hareket ederlerdi (Ocak, 2017: 76).
Fatımiler tarafından eğitilerek yetiştirilen, Bâtıni tevillere dayalı olarak kurduğu gizli örgütlenmeyle Selçuklu ülkesinde tedhiş hareketleri başlatan Hasan Sabbah, Sünni halk kitlelerini Şii imamete tabi kılmaya çalışmıştır (Köroğlu, 2006: 46). Suikastleriyle ün kazanan Hasan Sabbah’a bağlı Bâtıniler, kendilerine muhalif olan birçok kişinin canına kıymışlardır. Keza Selçukluların ünlü veziri Nizamülmülk, Bâtıniler tarafından düzenlenen bir suikast sonucu ölmüştür. Giriştikleri yoğun propaganda çalışmalarıyla dışarıdan Fatımiler, içeriden ise Bâtıniler, Sünni inancı ortadan kaldırmak için büyük çabalar göstermişlerdir.
Öte yandan Selçuklu öncesi doğu İslam dünyasında; Maveraünnehir, Horasan, İran, Irak ve Suriye coğrafyasında birbirine cephe almış 20 kadar mahalli hâkimiyetin oluşturduğu siyasi ayrılık ve karışıklık, bu siyasi mücadeleler neticesinde harabeye dönüşen şehir ve kasabalarda sıkıntıya, bununla birlikte asayişsizlik ve yol kesiciliğe, can ve mal emniyetinin kalmamasına sebep olmuştur (Kafesoğlu, 2016: 76).
Abbasi hilafetinin yanında yer alıp Sünnilik siyaseti takip eden Selçuklular, bu bağlamda Şiilik ve Bâtınilikle mücadele etmiştir (Şeker, 2015). Selçuklular, giriştikleri bu mücadelede Abbasi halifesini esaretten kurtarmış, Şii Büveyhilerin sonunu getirerek Fatımilere doğu İslam dünyasından el çektirmiş ve Sünniliğin zaferini sağlamıştır. Selçuklular böylece Kuzey Afrika dışında kalan ve ahalisini Sünnilik etrafında topladıkları bütün ülkelerde siyasi birliği tesis etmiştir (Şekil 3), (Kafesoğlu, 2016: 81). Kuzey Afrika’nın haricinde, Endülüs coğrafyası da bu siyasi çatının dışında kalmıştır.
Bu siyasi kargaşa ortamının dışında diğer taraftan Selçuklular, dâhil oldukları bu yeni medeniyette, aklı da parçalanmış buldular. Aklın parçalanmışlığı doğal olarak siyasi parçalanmışlığı da besliyordu. “Hakikati temsil ettiğini iddia eden onlarca dini ve fikri okul aralarında çatışma halindeydi; öyle ki, birbirlerinin canlarına kastetmekteydiler. İtikadî ve fıkhî mezhebler, irfani meşrepler, felsefi meslekler, tüm renkleri ve tonlarıyla mevcuttu” (Fazlıoğlu, 2018: 131).
Bu dönemde sünni mezhepler dahi birbirleriyle kavga halindedir. Selçuklular, izledikleri siyasetle bu kavgalara da son vermeye çalışmışlardır. Bağdat’ta 1076-77’de Şafilerle Hanbeliler arasındaki kavga buna örnek olarak verilebilir. Kavgada sayısı az olan Şafiilerden Bağdat Nizamiye Medresesi’nin müderrisi Ebu İshak eş-Şirazi, Nizamülmülk’e mektup yazarak yardım istemiştir. Nizamülmülk, cevabi mektubunda bir mezhebi terk edip diğer mezhebe yönelmenin doğru olmadığını belirtip insanların mezheplerinden ayrılmaya zorlanmasının adet olan bir şey olmadığını söylemiştir (Şeker, 2015: 265). Bu olaydan sonra bütün vaizler, divanda toplanarak vaazlarında usul ve mezheplere girişilmemesi konusunda karar almışlardır ve 1080 yılında bu husus bir disipline alınmıştır (Turan, 2017: 313). Keza, Hanefi mezhebine mensup olan Selçuklu sultanlarına vezirlik yapan Nizamülmülk, Şafii mezhebindendir. Anadolu Selçuklu sultanlarından Sultan Alaeddin Keykubad da Hanefi mezhebinden olmasına rağmen sabah namazlarını Şafii mezhebine göre kılardı (Şeker, 2015: 264). Tüm bu örnekler, Selçukluların sünni mezhepler arasında bir ayrım gözetmediğine ve herhangi bir mezhebin tarafgirliğini yapmadığına dair güzel örneklerdir. Devletin bu tutumu topluma da yansımış, sünni mezhepler arasında yaşanan kavgalar, zamanla son bulmuştur.
Askeri zaferlerle sağlanan siyasi birliğin tam manasıyla gerçekleşebilmesi için fikri sahada da birliğin sağlanması, parçalanmış aklın yeniden inşa edilmesi gerekmektedir. İhsan Fazlıoğlu, ortak aklın yeniden inşasına dair Selçukluların takip ettiği stratejiyi şöyle anlatmaktadır:
“Türkler, siyasi birliğin bile meşruiyetini kendisinden devşirdiği aklın/nazarın birliğinin yeniden yapılanması için çift yönlü bir strateji takip ettiler: (1) Hakikate ilişkin farklı mezhep, meslek ve meşreplerin ileri sürdüğü mevcut bilgi birikimini bir ortak dile dökmek; (2) bu ortak dile dökülen bilgi manzumesini eğitim-öğretim yoluyla nesiller arası aktarıma sokmak. Ortak dil üzerinden yürütülecek eğitim-öğretim yoluyla din ortak vicdanı, hikmet ortak idraki, tasavvuf ise ortak irfanı verecek; kısaca üst dilde birleşen bir ortak akıl, her alanda vuku bulan çatışma ortamlarını giderecek en azından asgariye düşürecektir. Bu ortak aklın kalıcılığı için ise medrese hem ortak vicdanın hem ortak idrakin, tekkeler ise ortak irfanın sürekliliğini yürütmeyi üstlenmiştir. Bu eylemin sonucu olarak ortaya çıkan ortak vicdan, itikadi ve fıkhi mezhebleri tahdid etmiş; bugün dahi kullanılan, geçerliliğini sürdüren pek çok dini formülasyon üretmiştir… Medreseler bir yandan Oğuz boylarının yeni dâhil oldukları medeniyetin vicdani, hikemi ve irfani birikimini özümsemelerini sağlamış; diğer yandan da bütün bir İslam coğrafyasında hem yatay hem de dikey boyutta ortak bir dili ve bu dili konuşan ortak bir aklı kurmuştur” (Fazlıoğlu, 2018: 133-135).
Özellikle Anadolu’da diğer coğrafyalara kıyasla fikri planda ciddi bir sükûnetin sağlandığı söylenebilir. Ulema sınıfı ile tasavvuf erbabı; medreseler ile tekkeler bir arada vücut bulmuşlardır. Ortak aklın kalıcılığında, ortak idrak, ortak vicdan ve ortak irfanının birlikte üretiminde Gazzali’yle birlikte yeni bir dönem başlamıştır. “Gazzali’den sonraki ulemanın büyük çoğunluğu kendisi gibi iki yönlü olmuş; bir yönüyle şeriatı, diğer yönüyle tasavvufu temsil etmişlerdir” (Ocak, 2017: 302). Medrese birinci planda aklı, tekke ise kalbi ele almaktaydı. Lâkin her ikisinin de gerekliliğine inanılıyordu. “Medreseye göre daha geniş halk kitlelerine hitabeden tekke ise kendi ufuklarını kavrayamayanları medreseye göndermekte hiç tereddüt etmemekteydi.” Tekke ile medrese bazı yerlerde aynı çatı altında bulunmaktaydı ve bu mekânlar tek şahıs tarafından yönetilmekteydi. (Kara, 1976: 33-34). “Medreselerde müderrislik yapanlar arasında tekkelerde ileri mertebeye varmış kişiler de bulunmaktaydı.” Bu durum Osmanlılarda da devam etmiştir. Hatta İznik’teki ilk Osmanlı medresesine müderris olarak atanan Davud-ı Kayseri, aynı zamanda şeyhtir ve tasavvuf üzerine eserler yazmıştır (Tekeli & İlkin, 1993: 14). Ayrıca birbirleriyle zıt fikirlere sahip olan Gazzali’nin ve İbn Sina’nın görüşleri Anadolu’da ortak dilde buluşur. “Bu üst dil (ortak dil) Gazzâli’nin süzgecinden geçen İbn Sinâcı mantık, genel bir deyişle tefekkür anlayışının, Fahruddin Râzi’nin tenkitlerini de dikkate alarak, başta Büyük Selçuklu düşünürlerinden Necmuddin Kazvini ile Konya kadısı Sirâcuddin Urmevi tarafından telif edildi” (Fazlıoğlu, 2018: 143).
Selçuklular, tarihi tecrübenin kendilerine kazandırmış olduğu özelliklerle dâhil oldukları bu yeni medeniyetin kargaşa ortamında, askeri zaferlerin yanı sıra sorunun esas kaynağını teşkil eden aklın parçalanmışlığına dair çözümler üretmişlerdir. Bu çözümler içerisinde medreselerin kurulması ve yaygınlaştırılması, ortak aklın inşası için çok önemli roller oynamıştır.
Merkezileşmenin Eğitim Sistemi ve Medrese Mimarisi Üzerindeki Etkisi
Eski Türk kabilelerinde hâkim olan Gök-Tanrı inancından kaynaklı kut anlayışına göre ‘hükümdarın Tanrı tarafından getirildiği’ fikri, Türklerdeki ‘hâkimiyet mefhumunun’ bir göstergesi olarak ifade edilir. “Yetkisini Tanrı’dan alan hükümdar kendisini evrenin merkezine yerleştirir” (Peker, 2016: 45). Eski Türk anlayışının temel girdilerinden birini teşkil eden ve dünyayı tek bir hükümdarın idaresi altında birleştirme üzerine kurulu cihan hâkimiyeti mefkûresi, Türklerin İslam’a girmelerinden sonra da devam etmiştir. “Kutadgu Bilig’de, milli ve kavmi duygulardan arınmış bir universalismus[2], bir cihan devleti anlayışı vardır” (Ögel, 2016: 40). Kaşgarlı Mahmud, bu anlayışı doğrular nitelikte şu ifadeleri kullanmıştır: “Tanrı, devlet güneşini Türklerin burçlarından doğdurmuş, göklerdeki dairelere benzeyen devletleri onların saltanatları çevresinde döndürmüş ve Türkleri yeryüzünde hâkim yapmıştır” (Kafesoğlu, 2016: 79).
Cihan hâkimiyeti mefkûresi, Selçuklu Türklerinde de devam eder. Türklerin İslam’a girmeleriyle birlikte kurulan Müslüman Türk devletlerinde hükümdar, artık sultan sıfatıyla tanımlanmaya başlar ve bu sıfatla birlikte “İslam’ın bayraktarı, koruyucu ve yayıcısı” vazifesini de sahiplenir (Peker, 2016: 47). Tuğrul Bey’e, 1058 yılının başlarında Bağdat’ta bizzat Abbasi halifesi Ka’im bi’Emrillah tarafından “şarkın ve garbın sultanı” unvanı verilmesi onun cihan hükümdarlığı anlayışını vurgular. Yine Sultan Melikşah, 1087 yılında Bağdat’ı ilk ziyaret edişinde bu unvan kendisine verilmiştir (Kafesoğlu, 2016: 79).
Dönemin büyük âlimlerinden birisi olan ve İslam düşünce hayatına büyük katkıları olan İmam Gazzali, dinin muhafazası adına devleti oldukça önemser ve onun gerekliliğini vurgular. Onun kaleme aldığı eserlerde dile getirdiği beyanlar, cihan hâkimiyeti fikrine sahip Selçuklu sultanlarının pozisyonlarını da kuvvetlendirmektedir. “Gazzali’ye göre sultan Allah’ın gölgesidir, bu münasebetle yönetilenlerin ona itaati şarttır ve onunla çekişmeleri de uygun değildir” (Yer, 2004: 43). Ayrıca Sultan Melikşah’a yazdığı Nasihatü’l-Mülûk kitabında ise “Allah’ın melik kıldığı insanlara itaat etmenin ve muhabbet beslemenin vacip” olduğunu söyler (Şeker, 2015: 248). Bu çerçevedeki bir başka yorumu da şöyledir:
“Din asıldır. Hükümdar onu muhafaza eder. Kökü olmayan yıkılmaya mahkûm olduğu gibi korunmayan temeller de yıkılır. Mülkün tamamlanması ve korunması ancak sultanlarla mümkündür. Hükümetlerde mülkü korumak ve nizamı kurmak da fıkıhla mümkündür. Fakih, hükümet reisinin ihtiyaç duyduğu siyasi kanunları inşa eden ve halk arasındaki ihtilafları kaldırmayı bilen kimsedir. Fakihler dünya işlerine istikamet vermede hükümdarların hocalarıdır” (Şeker, 2015: 246-247).
Gazzali’ye göre devlet olmadan bireyin mutlu olması düşünülemez. İnsanların farklı arzulara, görüşlere sahip olmalarından dolayı bu dağınık ve birbirine aykırı fikirler, ancak kendisine itaat edilen bir sultanla bir araya getirilerek bir fikir altında toplanabilir (Yer, 2004: 20-21). “Din’in nizamı dünyanın nizamına bağlıdır, din ancak dünya ile tamamlanır, din ve mülk/dünya ikiz kardeş gibidir” ifadelerinde, devletin gerekliliği üzerinde durduğu görülebilir (Şeker, 2015: 246). Gazzali, devletle ilgili görüşlerini, asıl gidilecek yer olan ahiret yurduna hazır olmakla ilişkilendirmiştir. Ona göre bu bağlamda şu üç başlığın korunması gerekir: Ahirete götürecek yol olan din, bu yolda araç olduğu için adaletle hükmeden devlet ve hem din hem de devlet için önemli olan tebaa (Yer, 2004: 21).
Diğer bir yandan da eski Türk devlet anlayışından gelen cihan hâkimiyeti mefkûresi doğrultusunda devletleşmeyi ve merkezileşmeyi önemseyen Selçuklular, yine Türklerin devlet geleneğinden gelen “devlet, hanedanın müşterek malı”dır anlayışından sıyrılamamıştır. Bu anlayış, devletin asli manada merkezîleşmesindeki en büyük engeli oluşturmuştur. Bu sebeple, daha kuruluşunda Büyük Selçuklu Devleti üçe taksim edilmiş ve sultan sıfatını alan Tuğrul Bey’in yanında hem Çağrı Bey’in hem de İnanç Bey’in kendi özerk hâkimiyetleri sağlanmıştır. Merkezi devlet yapısını tesis edebilmek için Tuğrul Bey ile birlikte merkeziyetçi politikalar devreye sokulmuş, Sultan Alparslan’la beraber bu politikalar devam ettirilmiştir. (Turan, 2017) Vezir Nizamülmülk, bu veraset anlayışından farklı olarak “devlet ve tebaa sultanındır” (Kafesoğlu, 2016: 88) görüşünde olmasına rağmen Büyük Selçuklular, bu anlayıştan sıyrılma konusunda tam anlamıyla başarılı olamamışlardır.
Anadolu Selçuklularda da aynı anlayış devam etmiş ve bu anlayış özellikle II. Kılıçarslan zamanında devleti ciddi sıkıntılara sokmuştur. İhtiyarlayan sultan, kendi isteğiyle devleti on bir oğlu arasında taksim edip her birini, melik sıfatıyla, bir eyaletin idaresine göndermiş ve kendisi de sultan olarak Konya’da oturmuştur. Sonrasında yaşanan taht mücadeleleri ve Haçlı seferi, devlet için büyük sıkıntılara sebep olmuştur (Turan, 2017). Bu veraset meselesi ancak Osmanlılarla birlikte çözülebilmiş ve siyaset buna göre geliştirilmiştir. “Öyle ki, bu ilke dışındaki uygulamaları garip bulup ‘nereden icat ettikleri’ne ilişkin bir mektup yazan Timûrî Şâhruh'a, Çelebi Sultan Mehmed'in, ‘Bunu bize tarihî tecrübe öğretti.’ şeklinde cevap verdiği bilinmektedir” (Fazlıoğlu, 2018: 132).
Pek tabidir ki, yönetimdeki bu merkez-çevre ilişkisi kendisini devletin diğer alanlarında da göstermektedir. Eski Türk devlet anlayışından sıyrılarak merkezileşmeye çalışan Selçuklular ve ardından Osmanlılarla birlikte bu anlayışın devre dışı kalması ve merkezi devlet yapısının hâkim olması tarihsel bağlam içerisinde eğitim alanında da benzerlikler taşımaktadır.
Cihan hâkimiyeti mefkûresine sahip olan hükümdarın merkeziyetçi devlet anlayışıyla Selçuklular, Orta Asya’dan Suriye’ye kadar sahip olduğu hâkimiyet sahasında karşılaştığı Çin, Hint, İran, Bizans gibi nice medeniyet ve kültürü; kendi inanç dünyasında eriterek birleştirmiş ve bir senteze ulaştırmıştır. Bu, mimari ve sanatta kendisini en iyi şekilde göstermiştir. “Küçük sanatlarda geleneklerine daha bağlı olan bir kavim, evrensel hükümdarın temsiliyet alanında birleştiricilik vasfını öne çıkartmayı daha uygun görmüştür” (Peker, 2016: 55). W. Barthold, Selçuklu mimarisi ile ilgili şu yorumda bulunmuştur: “Muhtelif yerlerdeki mimari tiplerin birbirine yaklaşması ve umumiyetle medeniyetin muhtelif kavimler arasında yayılması, Orta Asya’dan çıkan Selçuk Türk hanedanının muvaffakiyeti sayesinde olmuştur” (Peker, 2016: 48). Misal, “eyvan, Selçuklu öncesi Sasani mimarisinde yaygın olarak kullanılmış olsa da bir avlunun dörtkenar ortasında dört yöne hâkim yerleştirilmesi asıl olarak Selçuklu döneminde gerçekleşmiştir” (Peker, 2016: 56).
Merkezileşmenin Eğitim Sistemine Etkisi
Parçalı bir eğitim faaliyetinin yaygın olduğu İslam dünyasında, Selçuklularla birlikte yaygınlaşan medreseler, eğitimin kurumsal bir çatı altında yürütülmesini sağlamıştır. Medreseler, her ne kadar bir vakıf kurumu olması hasebiyle özerk bir yapıya sahip olsa da kurucularının ekseriyetle yönetici sınıfından olması, vakfiyelerin bu yönetici sınıfın istekleri doğrultusunda hazırlanması ve yine bir müderris adına kurulmaları, eğitimde devletin görünürlüğünü artırmıştır. Buna en güzel örnek olarak Nizamiye Medreseleri verilebilir. Medreselere müderris tayininde söz hakkı Nizamülmülk’e aitti.
Medreselerde yürütülen eğitim-öğretim sistemi, içerik ve biçim itibariyle medrese öncesi eğitim sisteminden pek de farklı değildir. Derslerin veriliş biçimi, hoca-talebe ilişkisi, evveliyatında var olan şekliyle devam etmiştir. Bununla beraber medreselerin kurulmasıyla birlikte devlet tarafından belirlenen zorunlu bir müfredat da yoktur. “Bir medreseye karakterini kazandıran, müderrisinin şahsî birikim ve ilmî yetkinliğiydi. Çünkü medresede hangi ilim ve eserlerin okutulacağını yine o medresenin müderrisi belirlemekteydi” (Yılmaz, 2014: 193). George Makdisi, bunun nedenini kısmen eğitim kurumlarını tesis eden kişilerin ve okutulacak derslerin belirlenmesi dâhil vakıf sahibinin kurum üzerindeki tercih özgürlüğüne ait olmasına bağlar. Vakıf sahibi de okutulacak derslerin belirlenmesinde, müderrisin görüşlerini dikkate alır (Makdisi, 2018: 139). Lâkin yine de fıkıh ilmi, “medreselerdeki eğitimin en merkezî unsuruydu ve medreseler ‘fakih’ olarak şöhret bulmuş isimler için kurulmuştu.” Çünkü fıkıh, “hayatın bütün alanlarını düzenleyen bir özellik arz eder. Bu nedenle diğer disiplinlerle mukayese edildiğinde pratik açıdan çok daha işlevsel bir özelliğe sahiptir” (Yılmaz, 2014: 253).
Meşhur Nizamiye medreselerinin belli başlı hocalarının ve yardımcılarının biyografik incelemelerine dayanarak Asad Talas, medreselerde şu içerikte genel bir ders programının olabileceğini ifade etmektedir (Talas, 2000: 51):
- Kur’an ve Kur’an ilimleri
- Hadis ve ilimleri
- Şafii usulü fıkhı ve Eşari kelamı
- Şafii fıkhı
- Arapça ve ilimleri
- Adâb ve kısımları
- Riyâdiyat ve ferâiz (aritmetik ve mirasın taksimi ile ilgili ilim)
Medresedeki bir dersin işleyişini Mez, şu ifadelerle anlatır: “Genellikle öğretim namazdan sonra başlıyordu ve öğrenciler namazı hocalarıyla birlikte kılıyorlardı. Dersler Hz. Peygambere yapılan salâtu selâm ve diğer dini sözlerle birlikte bir kâri (okuyucu) tarafından Kur’an-ı Kerim’in okunmasıyla başlıyordu” (Talas, 2000: 51). Derslerin öğreniminde genellikle takip edilen yöntem ezberleme, tekrar, tefakkuh, müzakere ve imla şeklindeydi (Bozkurt, 2018). “Ders esnasında hoca ve talebeler birbirlerine karşılıklı sorular sorarlar ve dersin zihinlerde pekişmesini temine çalışırlardı. Öğrenciler dinledikleri dersle ilgili olarak hocalarına istedikleri soruyu sorup bu sorular etrafında münazaralar geliştirirlerdi. Hocalar da bu tür münazaraları teşvik ederlerdi. Ders esnasında yapılan bu münakaşa ve münazaralarda saygı ve edebe son derece riayet edilir ve bu konuda taviz verilmezdi” (Ocak, 2017: 270). Salı ve Cuma günleri ise kaynaklarda öğrencilerin tatil günleri olarak belirtilir (Makdisi, 2018: 156).
Büyük medreselerde ise bugünkü karşılığıyla bir fakülteleşme söz konusudur. Farklı ilimler bir arada okutulabiliyordu. 1233 yılında Halife Mustansır tarafından yaptırılan Mustansırıye Medresesi (Şekil 4), bu konseptte ve dört mezhep için inşa edilmiştir (Cantay, 2006: 338-339). Bu medresede şeyh-i hadis ve şeyh-i tıp unvanında iki müderris bulunmaktaydı (Kuran, 1969: 4).
Medreselerle birlikte hoca tarafından talebeye verilen icazet usulü değişmemiştir. İcazet belgesinde medresenin ismi geçmez ve hoca kendi adına bu icazeti verirdi. Öğrenciler bir medreseyi tercih ederken medresenin kimliğine göre değil öğrenim görmek istedikleri hocaya göre hareket ederlerdi. Bir öğrenci diyar diyar gezerek birden fazla hocadan birden fazla icazet alabilirdi (Sayılı, 2002: 16).
Medreselerdeki sınıf düzeni ise halka şeklindedir. Derslerde takip edilen halka şeklindeki oturma biçimi, medreselerden önce var olan ve Hz. Peygamber döneminden gelen bir usuldür. Sınıftaki oturma düzeni öğrencilerin bilgi seviyelerine göre ayarlanmaktaydı. Konu hakkında en fazla bilgiye sahip olan talebe, müderrisin en yakınında oturmaktaydı. Bir talebenin oturma düzeninde müderrise göre konumu talebenin bilgi seviyesiyle ilişkilidir (Makdisi, 2018: 152). Müderris ise ders verirken bir koltuk veya divan üzerine otururdu, haricen post veya seccadede oturduğu da olurdu (Ocak, 2017: 269).
Medreselerden yetişen kişilerin aynı zamanda devletin çeşitli kadrolarında görev aldıkları görülmektedir. Bununla ilgili olarak Bağdat Nizamiye Medresesi’nin müderrisi olan Ebu İshak eş-Şirazi’nin sözleri güzel bir örnektir. 1082 yılında halifeden Sultan Melikşah’a elçi olarak giden Ebu İshak eş-Şirazi: “Horasan’a gitmek için yola çıktığımda hiçbir beldeye, hiçbir karyeye uğramadım ki orada benim yetiştirdiğim kadı, müftü, hatip bir öğrencim veya dostum olmasın.” demektedir (Ocak, 2017: 325). Lakin şu da var ki, bir makam elde edebilmek için medresede görev yapmış olmak ya da orada yetişmiş olmak gibi bir zorunlulukta yoktur. Ulemâ, makamları kendi kişisel kabiliyetleri ve şöhretleriyle elde etmekteydi (Yılmaz, 2014: 211). Aydın Sayılı, medreselerle birlikte zamanla ulema arasında hiyerarşi oluştuğunu ifade etmiştir. 13. yüzyıl Anadolu’sunda birçok medresenin varlığından söz edilmektedir. Sadece Konya’da birçok medrese bulunmaktaydı ve bu medreselerin yönetici hocaları arasında da muhtemelen bir hiyerarşi mevcuttu[3] (Sayılı, 2002: 33).
Medreselerdeki bu eğitim organizasyonu benzer şekilde Anadolu’da ve Osmanlı’nın ilk dönemlerinde devam etmiştir. Lakin Anadolu Selçuklu medreselerinde, eğitim-öğretim faaliyetlerine dair kaynaklarda pek bilgi yoktur. Vakfiyeler bu konuda yeterince bilgi vermemektedir. Bu metinlerde yer alan bilgiler, genellikle müderrislerde aranan vasıflarla ilgili umumi bilgilerdir. Bu gibi bilgiler her ne kadar ipucu verseler de bir müfredat programı oluşturmaktan uzaktırlar (Ünan, 2006: 398). Anadolu Selçuklu medreselerinde daha çok bir ihtisaslaşma söz konusudur. Fıkıh merkezli eğitimin verildiği medreselerin haricinde hususi hadis eğitiminin verildiği darülhadisler ve tıp eğitiminin verildiği medreseler de kurulmuştur.
Osmanlılarla birlikte medreselerdeki parçalar halindeki birikim sistemleştirilmiş ve bir bütün halinde işlerlik kazanmıştır (Akgündüz, 1997: 254). Sahn-ı Seman ve Süleymaniye medreseleriyle birlikte yapılan kanunnamelerle ülke genelinde parça parça ama aynı “ortak akıl” ve “ortak dil”e sahip olunması hasebiyle birbirleriyle çatışmayan irili ufaklı tüm medreseler, hukuki bağlamda bir sisteme ve nizama sokulmuştur. Süleymaniye ile medreselerde bir duraklama ve ardından 20. yüzyıla uzanan bir çöküş sürecine girilmiştir. Genel olarak şu ifade edilebilir; İslam dünyasında ilk medreselerin kuruluşundan 16. yüzyıla kadar olan 500 yıllık süreçte yönetimdeki merkezileşmeye paralel olarak; Selçuklularla birlikte parçalı eğitim faaliyetleri yerine medreseler yaygınlaştırılmış, yine bunun akabinde Osmanlılarla birlikte de parçalı medrese faaliyetleri genel bir hukuki düzen altında tam bir nizama ve birliğe sokulmuştur.
Merkezileşmenin Medrese Mimarisine Etkisi
Nizamiye medreseleri, her ne kadar büyük bir şöhrete sahip olsa da İslam dünyasında kurulan ilk medreselerden değildirler. Onlardan önce Maveraünnehir ve Horasan bölgelerinde Samanoğulları, Karahanlılar ve Gazneliler tarafından kurulmuş medreseler vardır (Dündar, 2012). Bazı kaynaklarda bu kurulan medreselerin özel teşebbüs olduğu söylenmektedir. Lâkin hem Karahanlılarda hem de Gaznelilerde, hatta Nizamiye öncesi Selçuklularda, devlet adamları tarafından kurulan medreseler bulunmaktadır. Buradan da medreselerin bir Selçuklu icadı olmadığı açık bir şekilde görülür. Selçukluların buradaki başarısı medreselerin kurumsallaşma sürecine olan katkılarıyla birlikte, onu tüm ülkeye yayması ve şöhret kazandırması olmuştur. Böylelikle medreseler tedricen tüm İslam dünyasında asli eğitim mekânına dönüşmüştür.
10. yüzyılda kurulmuş olan ilk medreselerden mimari anlamda üzerine konuşabileceğimiz hiçbir medrese yapısı günümüze ulaşamamıştır. Bununla birlikte kurulan ilk medreselerden olmasa da şekli ve getirdikleri itibariyle Nizamülmülk’ün kurduğu Nizamiye medreseleri, sadece eğitim anlamında değil; mimarisiyle de kendisinden sonrakilere önemli bir örnek teşkil etmiştir. Lâkin Nizamiyelerden de hiçbiri günümüze ulaşamadığı için nasıl bir mimariye sahip olduğuna dair kaynaklarda çok sınırlı bilgiler mevcuttur. André Godard’ın harabe halde bulunan Hargird Nizamiyesi’ne (Şekil 5.) dair çalışmaları yine de konuya dair ışık tutmaktadır. Godard, yaptığı kazı ve araştırmalar sonucu ortaya bir plan çıkartır (Şekil 6.). Medresenin dört eyvanı ve kare biçiminde bir avlusu bulunur. En büyük eyvan, kıble ekseni üzerinde ve kıble duvarına bitişiktir. Bu eyvanın tam karşısında giriş eyvanı yer alır. Ana eyvana kıyasla daha dar diğer iki eyvan ise aynı aks üzerinde avlunun tam ortasından geçen ana eyvan ve giriş eyvanının yer aldığı kıble eksenine dik eksen üzerinde konumlandırılmıştır. Medresenin diğer hücre ve odaları ise bu eyvanların arasına yerleştirilmiştir. Creswell, Godard’ın bu hipotezine şüphe ile yaklaşarak kalıntının bir camiye ait olduğunu söylemektedir (Kuran, 1969: 6).
Maveraünnehir ve Horasan bölgelerinde yer alan ilk medreselerin günümüze ulaşamamış olması ve Nizamiye Medreselerinin mimarisine ilişkin bilgilerin de sınırlı olması Büyük Selçuklular ve öncesine dair güçlü yorumlar yapmaya fırsat vermemektedir. Sayıca medrese yapılarının çok olduğu Anadolu coğrafyası ise güçlü yorumlar yapabilmek adına önemli bir kaynaktır. Büyük Selçukluların, Sultan Alparslan liderliğindeki Malazgirt zaferiyle Anadolu’nun kapıları, Türklere ardına kadar açılmış, kurulan birçok yeni Türk devletiyle Anadolu, Müslüman Türk yurdu haline gelmiştir. Kurulan bu devletler, kopup geldikleri Büyük Selçukluların, Maveraünnehir, Horasan ve İran coğrafyasının büyük birikimiyle müesseslerini vücuda getirmişlerdir. Bu birikim, kuşkusuz mimariye de yansımıştır. Anadolu’nun bu coğrafyalarla olan irtibatından ötürü mimari programın belirlenmesinde de yine bu coğrafyalar etkili olmuştur. Bu sebeple, Anadolu Selçuklu medrese yapıları, o coğrafyalara ait günümüze ulaşamamış medrese yapılarına dair de fikirler verebilir. Hem bu sebeple hem de Anadolu’nun diğer coğrafyalara kıyasla günümüze ulaşabilmiş erken tarihli medrese yapısının fazlalığından dolayı Anadolu özel bir konuma sahiptir.
Anadolu'da medrese mimarisinin oluşumunda iki farklı etki sahası bulunmaktadır. Bunlardan biri İran, diğeri ise Suriye'dir. Anadolu'da esas yaygın olan şema ise İran kaynaklı medrese yapılarından gelir. Suriye mimarisinin etkilerinin görüldüğü medrese yapıları, Artuklular tarafından güneydoğu bölgesinde, Diyarbakır, Mardin ve Urfa'da inşa edilmiştir ve açık avluludur. Anadolu'nun bilinen en eski medrese yapıları olan Tokat Yağıbasan medreseleri ise Danişmendliler tarafından inşa edilmiştir ve İran geleneğinin devamı niteliğindedir. Yağıbasan medreseleri (Şekil 7.), kapalı avlulu medrese mimarisinin Anadolu'daki en erken örnekleridir. Biçimsel olarak Orta Asya Türk evleri ile ilişkilendirilmektedir. Doğan Kuban, Müslüman ülkelerin hiçbirinde, bir medrese yapısının, Horasan ve Batı Türkistan konutlarına bu denli yakın olmadığını söyler. Kuban, bu medreseleri, Anadolu'daki dindarlığın kökeni olarak belirttiği, Türkistan'da doğmuş olan Yesevilik'ten hareketle, şeyh ve hoca evlerinin biçimsel devamı olarak görmektedir (Kuban, 2002: 164). Her ne kadar Danişmendli medrese yapılarının plan düzeni, Anadolu Selçuklular tarafından takip edilmese de (Kuran, 1969: 60) merkezi kubbeli medrese yapıları devam etmiştir.
Anadolu, özellikle 13. yüzyılda doğudan yükselerek gelen Moğol istilalarının önünde sürüklediği büyük insan kitlelerinin sığınağı olmuştur. Bir asır boyunca yaşanan mücadeleler sebebiyle azalan Türk nüfusu, bu asırda yaşanan göçlerle birlikte tekrardan canlanmıştır. Özellikle bu asır içerisinde yoğun göçlerle birlikte gelen âlim ve zanaatkârlarla, Anadolu, o dönemin İslam dünyası içerisindeki en renkli toplumlarından biri olmuştur.
13. yüzyıl içerisinde Belh’ten gelen Mevlana, Endülüs’ten gelen İbn Arabi, Suriye’den gelen Şahabeddin-i Sühreverdi, Anadolu’da kabul görmüş ve devlet tarafından destek görmüştür. Bu şahıslar, fikri manada yaşanan canlılığa güzel bir örnek teşkil etmişlerdir. Anadolu’da fikri hayatta yaşanan bu renklilik, aynı zamanda sanatta ve mimaride de yaşanmıştır. Yerel zanaatkâr ustalarla birlikte farklı coğrafyalardan gelen zanaatkârlar Anadolu’da buluşmuş ve bir terkip gerçekleştirilmiştir. Özellikle cihan hâkimiyeti mefkûresine sahip olan hükümdarın bânisi olduğu bir mimari eserde, farklı coğrafyalardan gelen ustaların gerçekleştirmiş olduğu bu terkip, daha net görülebilmektedir. Doğan Kuban, Anadolu Selçuklu çağını “heterojen (çok türlü) ve senkretik (farklılıkları bağdaştırıcı) çağ” olarak tanımlar (Kuban, 2002: 10). Bir yapıyı oluşturan, onu tezyin eden farklı coğrafyaların insanı, mesela; bir taş ustası, bir tuğla ustası, bir hattat, bir mozaik ustası aynı yapıda bir araya gelebilmektedir. Bu renkli ve canlı ortam, bir medrese yapısının inşasında sürekli yeni arayışları, yeni denemeleri beraberinde getirir.
Anadolu Selçuklular, bir üst dil çerçevesinde sürekli yeni şeyler denemiştir. Burada diğer coğrafyalara kıyasla çok büyük bir zenginliğin olduğu ortaya çıkmaktadır. Açık avlulu medreseler olduğu gibi, kapalı avlulu medreseler de vardır. Eyvan sayısı dört farklı şekilde denenmiştir. Bir eyvanlı, iki eyvanlı, üç eyvanlı ve dört eyvanlı medreseler vardır. Minaresi olan, köşe kuleleri olan medreseler vardır. Talebe hücrelerinin yerleşiminde çoğunlukla iki yana yaslı düzen takip edilse de bir yana yaslı, üç yana yaslı ve koğuş tipinde bir düzen de denenmiştir. Farklı malzeme ve teknikler kullanılmıştır. Kesme taş ve moloz taşın yanı sıra; kaba yonu taş, mermer ve tuğla da kullanılmıştır. Esasında medrese yapılarındaki bu zenginlik, toplum yapısının ve dolayısıyla bâninin ve zanaatkârların renkliliğinden de kaynaklanmaktadır. Mesela Sırçalı Medresesi’nin (1242) mimarı İran kökenli Tus’lu Mehmed adında biridir. Sivas Gök Medresesi’nin mimarı ise Konyalı olduğu künyesinden anlaşılan Kalûyan el- Konevi’dir. Caca Bey Medresesi’nin vakfiyesinin bir kısmı, Uygur dilinde Moğolca kaleme alınmıştır (Temir, 1952). Tüm bu misaller Anadolu’daki bu renkliliği açıkça göstermektedir.
Medrese mimarisinde gözlemlenen bu renklilik ise bir plan tipolojisinin oluşmadığı yorumuna sebebiyet vermemelidir. Bir medresenin olmazsa olmaz mimari unsurları olan; avlu, eyvan ve talebe hücreleri[4], incelenen tüm medrese yapılarında bulunmaktadır. Bu da medreselerin inşasında kullanılan ortak bir ihtiyaç programının varlığını ispat eder. Medreseler, her ne kadar özerk bir hüviyette olsa da ihtiyaçlar ve mimarileri açısından birbirlerinden kopuk değillerdir. Aksine aynı üslubu paylaşırlar. Bu da ekseriyetle yönetici tabakadan olan bânilerin ortak bir akla sahip olduklarını gösterir. Çünkü bir üslubun ortaya çıkabilmesi için “ortak akıl” olmazsa olmazlardandır ve bu “ortak aklın” sağlayıcısı ise merkezi idare olan devlettir. Türklerin merkezileşmeyi önemseyen yönetim anlayışı, kendisini eğitimde ve mimaride de göstermiş, Anadolu Selçuklular, medrese yapılarında bir plan tipolojisi oluşturabilmişlerdir.
Anadolu Selçuklu medresesi, genel hatlarıyla; anıtsal bir taç kapıyla içeri girilen, çoğunlukla tek katlı, açık avlulu, iki veya dört eyvanlı, kışlık dershanesi bulunan, talebe hücrelerinin iki yana yaslı olduğu, türbesi bulunan, avlusunun merkezinde bir havuzu olan, penceresiz veya mazgal pencereli oluşundan ötürü dış mekândan kopuk, içine dönük, yerel malzeme ile moloz ve kesme taştan inşa edilmiş kale görünümüne sahip bir tip plan şemasına sahiptir.
Selçuklular, devletin şekillenmesinde İran devlet geleneğinden beslenmiş ve müesseselerini vücuda getirirken bu kaynaktan önemli ölçüde yararlanmıştır. Hem “devlet hanedanın ortak malıdır” anlayışından ötürü merkezi idarenin tam kurulamamış olması, hem de ikta sisteminin Osmanlı’ya kıyasla özerkliği teşvik edici boyutlarda olması, sultanların yanında vezirleri ve diğer önemli düzeydeki devlet adamlarını maddi anlamda güçlü kılmıştır. Anadolu Selçuklular da devleti kurarken bu geleneği devam ettirmiş, vezirler, önemli düzeydeki devlet adamları maddi anlamda güçlü pozisyonda olmuşlardır. Devlet adamlarının bu güçlü pozisyonları, kendisini medrese bâniliğinde de göstermiştir.
Medreselerin yapımını sağlayan bânilerin görevlerine bakıldığında ezici bir çoğunlukla melik, vezir, emir ve atabey gibi yüksek düzeyli devlet adamlarının öne çıktıkları görülmektedir. İlginç bir şekilde sultanlar, medrese yaptırma konusunda zayıf kalmışlardır. Toplamda sadece 3 medrese yapısının bâniliğinde sultanlar yer almıştır. Hanım sultanların inşa ettiği medrese sayısı ise 4 adettir. Sultanlar, daha çok tıp medresesi (Şekil 8.) ve darüşşifa yapımıyla ilgilenmişlerdir. Darüşşifaların yanında hanlar da Selçuklu sultanlarının prestij yapıları olarak görülebilir. Sultanların bânisi oldukları yapı türleri içerisinde birinci sırayı hanlar almaktadır.[5] Yoğun ticaret etkinliklerinin yaşandığı bu hanlar, Selçuklu Anadolu’sunun en anıtsal ve görkemli yapılarıdır (Durukan, 2001: 55-56).
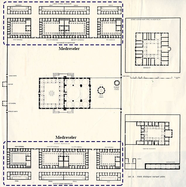
Yönetimsel ve hukuksal anlamda merkezi idareyi tam anlamıyla kuramayan Selçukluların inşa ettiği medreseler, her ne kadar sultanlar veya devlet adamları tarafından yaptırılsa da tam anlamıyla bir devlet kurumu niteliğinde değildir. Dolayısıyla, statü olarak özerk yapıları vardır. Bu durum, kendini üst ölçekte ya müstakil bir konumda ya da dâhil olduğu yapı grubunun merkezi konumunda oturtmaktaydı. Osmanlı dönemiyle birlikte Fatih zamanında, medrese öğretimi belli bir kanuna bağlandı (Kazıcı, 1991: 241). Böylece resmi bir kurum olarak devlet nizamı içerisinde yer aldı (Kılıç, 2001). Bu kanunla özerk statüleri Selçuklulara nazaran zayıflamıştır. Özellikle bu dönemden sonra medreseler, genellikle merkezini caminin teşkil ettiği bir külliyenin, daha küçük ölçekte bir parçası haline gelmiştir. Bu bağlamda, siyasetteki merkezileşme, eğitimdeki merkezileşmeyi de etkilemiş, bu durum mimari anlamda medresenin konumunun zaman içerisinde değişmesine sebep olmuştur. Huand Hatun Külliyesi’nde (Şekil 9.) medrese ve camii iç içe ve neredeyse aynı boyutlarda iken, Fatih Külliyesi’nde (Şekil 10.) medreseler, merkezde yer alan camii etrafında daha küçük boyutlarda konumlandırılmıştır.
Mehmet Sağlam, yazmış olduğu yüksek lisans tezinde konu ile ilgili şu yorumları yapmaktadır:
“Osmanlı'nın merkezileşmiş siyasi yapısından farklı olarak, Osmanlı öncesi parçalı siyasi yapı, işlevleri ve idareleri açısından özerk medreselerin ortaya çıkmasına neden oldu. Osmanlı merkezileşmesi ile medreseler sadece mimari yapı açısından değil, aynı zamanda Osmanlı devletinin idari ve siyasi yapısının bir parçası olarak birleşik mekânların parçası haline geldi. Özellikle Sünni İslam üzerinden güçlü bir otorite sergileyerek sultanların politikalarının yansımasına alet oldular.” (Sağlam, 2000: 86-87)
Sonuç
Selçukluların tarih sahnesine çıkmalarından evvel büyük bir siyasi ve fikri parçalanmışlığın yaşandığı, iç savaşların, kargaşa ortamının hâkim olduğu İslam dünyası, Oğuzların boy boy Müslüman olmaya başladıkları 11. yüzyılda kurulan Selçuklu Devleti ile birlikte büyük oranda tekrar birliğe kavuşur. Kazanılan askeri zaferler ve takip edilen siyaset, geniş ölçekte siyasi parçalanmışlığı, ortadan kaldırmıştır. Lâkin esas manada siyasi parçalanmışlığın ortadan kaldırılabilmesi için fikri parçalanmışlığın yerini birliğe bırakması gerekir. Akıl, eylemlerin belirlenmesinde başat unsurdur. Dolayısıyla birbirine zıt akıllar, birbirine zıt eylemleri doğurur ve zıt akılların öne sürdüğü birden fazla doğru, birbiriyle doğal olarak çatışır, ayrılıklara sebebiyet verir. Hele ki bu mevzular, inanç sistemi ile ilgiliyse, ayrılıkların, daha derin yaşandığı görülür. İşte burada üst iradenin yani devletin, ayrılıkları giderme noktasında, ortak aklı tahkim edici politikalar geliştirmesi gerekmektedir.
Ortak aklın ve bu ortak aklı sürdürülebilir kılan ortak dilin üretiminde eğitim, önemli bir faktördür. Selçuklular, tarihi tecrübenin onlara kattıkları hesaplayıcı, çözümleyici ve düzenleyici bakış açısıyla yeni dâhil oldukları İslam medeniyetini dışarıdan doğru bir şekilde gözlemleyebilmiş ve sorunlara akılcı çözümler üretebilmişlerdir. Parçalı eğitim faaliyetleri yerine, sadece eğitime hasredilen medreseleri tüm ülkeye yaymışlardır. Devlet adamları eliyle kurulan medreseler, eğitimde merkezileşmenin ve devlet kontrolünün önünü açmıştır. Devlet, bu vesileyle aykırı gördüğü inanç ve düşüncelerin önüne geçmeye çalışmıştır. Ortak aklın ve ortak dilin üretiminde önemli bir rol oynayan medreseler, aynı zamanda Sünni ulemanın himayesiyle birlikte Sünni inancı, kurulduğu coğrafyalarda tahkim etmiştir. Öte yandan, her ne kadar merkeziyetçi politikalar, devreye sokulsa da eski Türk devlet ananesinden gelen “devlet hanedanın ortak malıdır” anlayışı devletin asli manada merkezîleşmesindeki en büyük engeli oluşturmuştur. Bu durum, devletin ömrünü kısaltan önemli etkenlerden biri olmuştur. Bu dönemde medreseler, bir devlet kurumu olmadığı gibi bir kanunnameye de tabi olmadığı için eğitimde merkezileşme, nihai bir noktaya erişememiştir. Devlet tarafından belirlenen standart bir müfredat yoktur. Her müderris, ilmi yetkinliğine göre kendi müfredatını kendisi oluşturmaktadır.
Türklerin yeni yurdu haline gelen Anadolu coğrafyasında ise benzer bir amaçla, farklı inançlara sahip bir toplum, kurulan medreselerle belli bir nizama sokulmaya çalışılmıştır. Bu politika, Anadolu’nun Müslümanlaşmasına ve sıkıntılı addedilen görüşlerin bertaraf edilmesine önemli katkılar sağlamıştır. Büyük Selçukluların yıkılmasından sonra her ne kadar İslam dünyası, tekrar birçok devlete bölünse de yaşanan çatışmalar, inanç ve fikir temelli olmaktan uzak olmuştur. Bu çatışmalar, daha çok devletlerin hâkimiyet sahalarını genişletme, Bizans gibi yabancı devletlerle, haçlı ve Moğol seferleriyle mücadele şeklinde geçmiştir. Dolayısıyla Selçukluların fikir ve eğitim sahasında takip ettikleri politikaların, fikri parçalanmışlığı giderme noktasında etkili olduğu görülmektedir.
Bu politikaların şekillenmesinde, önemli unsurlardan biri de Selçuklu Türklerinin yönetim anlayışı olmuştur. Eski bir inanış olan kut anlayışından doğan cihan hâkimiyeti ve cihan hükümdarı fikri, Türklerin Müslüman olmalarından sonra da devam etmiştir. Bu fikir, kendisini Selçuklu Türklerinde de göstermiştir. Bu anlayışla hareket eden “cihan hükümdarı”, devletçi ve merkeziyetçi politikalarıyla hâkimiyet sahasını belli bir “ortak akıl” üzerinden nizama sokmaya çalışmıştır. Bu “ortak aklı”, bir eğitim kurumu olan medreselerle birlikte bir “ortak dil” üzerine tesis etmek de bu politikalardan birisi olmuştur.
Sonuç itibariyle merkezileşme çabalarının medrese mimarisine etkilerini okuyabilme adına Anadolu Selçuklu dönemi önemli bir duraktır. Bu asırlar, kendinden öncesini taşıyan ve kendinden sonrasına zemin hazırlayan bir ara dönemdir. Kendinden önceki Büyük Selçukluların; İran, Horasan, Maveraünnehir coğrafyasının büyük birikimini Anadolu’ya taşıyarak, bu birikimi yerel olanla terkip etmiş, geliştirmiş ve kendinden sonraki Osmanlılara sağlam bir zemin hazırlamıştır. Bu dönemde medreseler, bir devlet kurumu olmadığı gibi bir kanunnameye de tabi olmadığından ötürü eğitimde merkezileşme, nihai bir görünüm kazanamamıştır. Lakin yapılan çalışma neticesinde; Anadolu’da her ne kadar medreselerin mimari üretiminde sürekli yeni denemeler olsa da bu üretimi akamete uğratabilecek büyük siyasi olaylar yaşansa da, mimaride bir üst dilin, bir ortak dilin ortaya konulabildiği anlaşılmıştır. Farklı şehirlerde, farklı bânilerin yaptırmış olduğu medreseler, birbirleriyle aynı mimari dili paylaşmaktadır. Medreselerin aynı mimari dili paylaşması ve bu dil çerçevesinde; taçkapısıyla, avlusuyla, eyvanlarıyla ve talebe hücreleriyle birlikte bir tip plan şemasının varlığı, merkezileşmenin medrese mimarisi üzerindeki rolü ve etkisini açıkça ortaya koymaktadır.
Kaynakça
Akgündüz, H. (1997). Klasik Dönem Osmanlı Medrese Sistemi: Amaç, Yapı, İşleyiş, Ulusal Yayınları, İstanbul
Archnet (2018). Madrasa-i al-Nizamiyya, https://archnet.org/sites/3867/media_contents/1067 [19.11.2018].
Archnet (2020). Fatih Külliyesi, https://archnet.org/sites/2842 [31.05.2020].
Beken, A. (2014), İlk Kuruluş Dönemlerinde Medreselerde Dinî İlimlerin Öğretimi -Nizâmiye ve Müstansıriyye Örnekleri-, Yüksek Lisans Tezi, Çukurova Üniversitesi.
Bozkurt N. (2018). Medrese, TDV İslâm Ansiklopedisi, https://islamansiklopedisi.org.tr/medrese#1 [27.10.2018).
Cantay G. (2006), Medreseler, Editörler: Peker A. U., Bilici K., Anadolu Selçuklu ve Beylikler Dönemi Uygarlığı (2. Cilt) (337-349), Kültür ve Turizm Bakanlığı, Ankara.
Durukan, A. (2001). Anadolu Selçuklu Dönemi Kaynakları Çerçevesinde Bâniler, Sanat Tarihi Defterleri 5 (43-132), Ege Yayınları, İstanbul.
Dündar, A. (2012) Selçuklular Devri Bağdat Medreseleri: İmâm-I Âzam Ebû Hanîfe Medresesi Örneği, Yüksek Lisans Tezi, Marmara Üniversitesi.
Fazlıoğlu, İ. (2018). Kayıp Halka İslam-Türk Felsefe-Bilim Tarihinin Anlam Küresi, Paperense Yayınları, İstanbul.
İslam Düşünce Atlası-İDA. (2020). Yenilenme Dönemi, https://www.islamdusunceatlasi.org/pages/yenilenme-donemi/detail [15.09.2019].
Kafesoğlu, İ. (2016). Selçuklular ve Selçuklu Tarihi Üzerine Araştırmalar, Ötüken Neşriyat, İstanbul.
Kara, M. (1976). Tekke Medrese Münasebetleri Üzerine, Fikir ve Sanatta Hareket, 113, 32-41.
Karamağaralı, H. (1973). Kayseri’deki Hunad Câmiinin Restitüsyonu ve Hunad Manzumesinin Kronolojisi Hakkında Ba’zı Mülâhazalar, Ankara Üniversitesi İlahiyat Fakültesi Dergisi, 1, 199-245.
Kaya, M. (2020). Beytülhikme, TDV İslâm Ansiklopedisi, https://islamansiklopedisi.org.tr/beytulhikme [22.03.2020].
Kazıcı, Z. (1991). İslam Müesseseleri Tarihi, Kayıhan Yayınları, İstanbul.
Kılıç R. (2001). Osmanlı Devleti’nde Medreseler, Türk Kültürü, 456, 205-216.
Köroğlu, M. (2006). Nizamiye Medreselerinin İcra Ettiği Fonksiyon ve Etkilediği Coğrafya, Yüksek Lisans Tezi, Celal Bayar Üniversitesi.
Kuban, D. (2002). Selçuklu Çağında Anadolu Sanatı, Yapı Kredi Yayınları, İstanbul.
Kubbealtı Lugatı (2021). Zâviye, http://www.lugatim.com/s/Z%C3%82V%C4%B0YE [07.08.2021].
Kuran, A. (1969). Anadolu Medreseleri, Orta Doğu Teknik Üniversitesi Mimarlık Fakültesi, Ankara.
Makdisi, G. (2018). Ortaçağ’da Yüksek Öğretim İslam Dünyası Hristiyan Batı, Çeviri: Ali Hakan Çavuşoğlu, Tuncay Başoğlu, Klasik Yayınları, İstanbul.
Ocak, A. (2017). Selçuklu Devri Üniversiteleri Nizamiye Medreseleri, Nizamiye Akademi, İstanbul.
Ögel, B. (2016). Türklerde Devlet Anlayışı-13. Yüzyıl Sonlarına Kadar, Ötüken Neşriyat, İstanbul.
Peker A. U. (2016) Türklerin Evrensel Hükümranlığının İran’da Sanat ve Mimariye Getirdiği Açılımlar, Denge, 1, 39-64.
Sağlam, M. (2000) Medrese Education and Architecture in The Political Context of The 11th-16th Centuries Anatolia, Yüksek Lisans Tezi, Orta Doğu Teknik Üniversitesi.
Sayılı, A. (2002). Ortaçağ İslam Dünyasında Yüksek Öğretim Medrese, Çeviri: Recep Duran, [y.y].
Smithsonian Online Virtual Archives (2021). Baghdad. Mustansiriya. SA-II, fig.30, https://sova.si.edu/details/FSA.A.06?f=data_source%3AFreer+Gallery+of+Art+and+Arthur+M.+Sackler+Gallery+Archives&s=9384&n=12&t=D&q=*&i=9385#ref9045, [17 Ocak 2021]
Şeker, F. M. (2015). Selçuklu Türklerinin İslam Tasavvuru, Dergah Yayınları, İstanbul.
Talas M. A. (2000). Nizamiyye Medresesi ve İslâm'da Eğitim-Öğretim, Çeviri: Sadık Cihan, Etüt Yayınları, Samsun.
Tekeli, İ., & İlkin, S. (1993). Osmanlı İmparatorluğunda Eğitim ve Bilgi Üretim Sisteminin Oluşumu ve Dönüşümü, Türk Tarih Kurumu.
Temir A. (1952). Kırşehir’de Bulunan 1272 Tarihli Moğolca Vakfiye, IV. Türk Tarih Kongresi: Ankara, 10-14 Kasım 1948: kongreye sunulan tebliğler (283-289), Türk Tarih Kurumu Basımevi, Ankara.
Turan, O. (2017). Selçuklular Tarihi ve Türk İslam Medeniyeti, Ötüken Neşriyat, İstanbul.
Ünan F. (2006). Anadolu Selçukluları ve Beylikler Dönemi’nde Eğitim, Editör: Ocak., A. Y., Anadolu Selçuklu ve Beylikler Dönemi Uygarlığı (1. Cilt) (389-399), Kültür ve Turizm Bakanlığı, Ankara.
World Digital Library (2018). Damascus. Side of the Great Mosk (Umayyad Mosque), Looking North, https://www.wdl.org/en/item/18939/#q=Umayyad+Mosque&qla=en [23.12.2018].
Yer, S. (2004). Gazzâlî ve İbn Haldun’da Din-Devlet İlişkisi, Yüksek Lisans Tezi, İstanbul Üniversitesi.
Yılmaz, H. (2014). Zengîler ve Eyyûbîler Döneminde Dımaşk’ta “Medrese” (1154-1260), Doktora Tezi, Marmara Üniversitesi.
Ekler

Şekil 1. Şam Emeviye Camii'nin avlusunda halka şeklinde oturan insanlar, Fotoğraf: Francis Bedford, 29 Nisan 1862 (www.wdl.org)

Şekil 2. Selçuklulardan önce coğrafi sınırlar, Harita: Erol Polat, (www.islamdusunceatlasi.org)

Şekil 3. Selçuklulardan sonra coğrafi sınırlar, Harita: Erol Polat, (www.islamdusunceatlasi.org)

Şekil 4. Mustansırıye Medresesi'nin avlusundan bir görünüm, çizim: E. Herzfeld (sova.si.edu)

Şekil 5. Hargird Nizamiye Medresesi’nin harebe görünümü, 1925, Fotoğraf: Ernst Herzfeld (archnet.org)

Şekil 6. Hargird Nizamiye Medresesi, Plan: André Godard (Kuran, 1969: 7).

Şekil 7. Danişmendliler döneminde 12. yüzyılın ortalarında inşa edilen Yağıbasan Medreseleri, Niksar Yağıbasan Medresesi (sol) (Kuran, 1969: 15), Tokat Yağıbasan Medresesi (sağ) (Kuran, 1969: 17).

Şekil 8. Sultan I. Gıyaseddin Keyhüsrev tarafından bir tıp medresesi işleviyle yaptırılan Gıyasiye Medresesi (Meral, 2020).

Şekil 9. Huand Hatun Külliyesi, plan (Karamağaralı, 1973).

Şekil 10. Fatih Külliyesi, restitüsyon planı, Ekrem Hakkı Ayverdi (archnet.org)
TYB Akademi 33. Sayı / Eylül 2021































Türkçe karakter kullanılmayan ve büyük harflerle yazılmış yorumlar onaylanmamaktadır.